Fue nuestro primer concurso de equipamiento público ganado (2006), y si bien su construcción ha sido aplazada “sine die”, nos sirvió de base para adquirir una sólida especialización en materia de arquitectura docente.
Las particulares características del entorno en que se ubicará el nuevo Centro Educativo, nos obligaban a dar respuesta adecuada, creando un edificio a escala urbana, perfectamente integrado en la trama de la ciudad, pero sin perder de vista la relación con el medio natural.
Así, el edificio ofrecerá una fachada que configure el frente “urbano”, marcando su carácter público, mientras hacia el interior, la arquitectura será más libre y orgánica, en respuesta a la “tensiones” generadas por la proximidad de Sierra Morena, cuyas vistas desde el interior del edificio, serán el elemento diferenciador de este edificio.
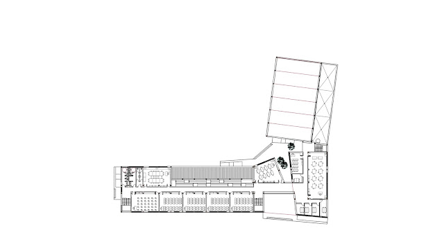
Bajo estas premisas se proyecta un edificio compuesto por dos piezas, en las que se alojan la zona docente y el gimnasio respectivamente, disponiéndose como nexo de unión la zona administrativa.
Las particulares características del entorno en que se ubicará el nuevo Centro Educativo, nos obligaban a dar respuesta adecuada, creando un edificio a escala urbana, perfectamente integrado en la trama de la ciudad, pero sin perder de vista la relación con el medio natural.
Así, el edificio ofrecerá una fachada que configure el frente “urbano”, marcando su carácter público, mientras hacia el interior, la arquitectura será más libre y orgánica, en respuesta a la “tensiones” generadas por la proximidad de Sierra Morena, cuyas vistas desde el interior del edificio, serán el elemento diferenciador de este edificio.
Bajo estas premisas se proyecta un edificio compuesto por dos piezas, en las que se alojan la zona docente y el gimnasio respectivamente, disponiéndose como nexo de unión la zona administrativa.

La pieza principal consta de dos niveles que se se comunicarán por medio de núcleos verticales y una rampa con el objeto de solucionar los problemas de accesibilidad, sin la necesidad de disponer ascensor, eliminando los costes de mantenimiento que genera este tipo de instalaciones. En la planta baja se dispone la Conserjería, el Área Administrativa, las dependencias del profesorado, la cafetería, la Biblioteca y la zona de Instalaciones. Las aulas y talleres, así como los aseos, se distribuyen entre ambos niveles. Accesos independientes permiten el uso diferenciado de cada una de las áreas del centro; estableciéndose accesos específicos para servicios y mantenimiento, para la biblioteca, para los vestuarios del gimnasio y para el acceso rodado.
El porche es principal protagonista del edificio, pues se dispone tras la rampa permitiendo su configuración como un gran mirador desde el que disfrutar de las espléndidas vistas sobre la Sierra.
La disposición de las aulas orientadas al sur, y de la mayor parte de los espacios, enfrentados a pasillos con ventanas practicables garantiza el adecuado soleamiento y ventilación así como establece una continua referencia con los espacios exteriores.
La urbanización de la parcela se realizará de forma que las diferentes zonas del edificio queden perfectamente integradas, creando una zona central de juegos, incluyendo las pistas deportivas, y una banda perimetral de zonas verdes. En el frente principal el edificio se retranquea respecto a la alineación prevista, quedando una franja delimitada por un cerramiento, en la que se dispondrá arbolado.
En definitiva se propone una arquitectura atractiva y sugerente, estableciendo una relación conceptual entre forma y entorno, dando respuesta eficaz al programa funcional establecido, y constituyendo un hito urbano dentro del entorno en el que se ubica.
En definitiva se propone una arquitectura atractiva y sugerente, estableciendo una relación conceptual entre forma y entorno, dando respuesta eficaz al programa funcional establecido, y constituyendo un hito urbano dentro del entorno en el que se ubica.




No hay comentarios:
Publicar un comentario